Brent Russell / REMAX Professionals (NA)

5858 5856 Annsobel Cir, Townhouse for sale Nanaimo , BC , V9V 1E1

 MLS® # 1022641

6 bedrooms

4 bathrooms

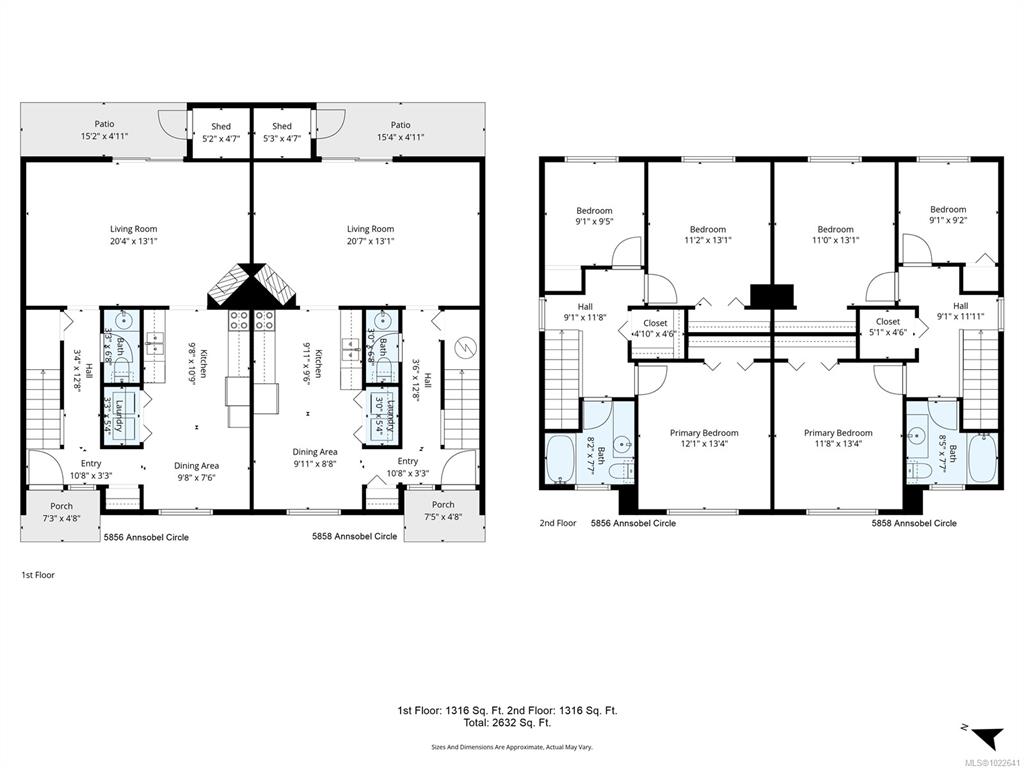
2,632 sqft

Sign up to View

Days on Market

Located in a quiet cul-de-sac in desirable North Nanaimo, this full duplex is close to schools and all amenities and sits on a large 0.36-acre lot (15,816 sq. ft.), offering excellent investment and future development potential. Each side provides approximately 1,316 sq. ft. over two levels, featuring three bedrooms and one and a half bathrooms. The main floor includes a galley-style kitchen with an eat-in dining area, laundry, a two-piece bathroom, and a living room with access to the private rear yard, wh...

Read More

Essential Information

  • MLS® #
    1022641
  • Total Bathrooms
    4
  • Year Built
    1980
  • Property Type
    Full Duplex
  • MLS® #
    1022641
  • Total Bathrooms
    4
  • Year Built
    1980
  • Property Type
    Full Duplex
  • MLS® #
    1022641
  • Total Bathrooms
    4
  • Year Built
    1980
  • Property Type
    Full Duplex

Community Information

  • Postal Code
    V9V 1E1
  • Postal Code
    V9V 1E1
  • Postal Code
    V9V 1E1

Services & Amenities

  • Parking
    Driveway
  • Parking
    Driveway
  • Parking
    Driveway

Interior

  • Floor Finish
    Mixed
  • Heating
    Baseboard
    Electric
  • Floor Finish
    Mixed
  • Heating
    Baseboard, Electric
  • Floor Finish
    Mixed
  • Heating
    Baseboard
    Electric

Exterior

  • Lot/Exterior Features
    Balcony/Patio
    Fencing: Partial
  • Roof
    Asphalt Shingle
  • Construction
    Frame Wood
    Stucco
  • Lot/Exterior Features
    Balcony/Patio, Fencing: Partial
  • Roof
    Asphalt Shingle
  • Construction
    Frame Wood, Stucco
  • Lot/Exterior Features
    Balcony/Patio
    Fencing: Partial
  • Roof
    Asphalt Shingle
  • Construction
    Frame Wood
    Stucco

Additional Details

  • Zoning
    R5
  • Sewer
    Sewer Connected
  • Zoning
    R5
  • Sewer
    Sewer Connected
  • Zoning
    R5
  • Sewer
    Sewer Connected

$749,900

5858 5856 Annsobel Cir

Schedule Tour
Contact Agent

$3415/month
Est. Monthly Payment
$
$
%
Learn More